AÑO

2011

PROGRAMA

Residencial · Rehabilitació

SUPERFÍCIE

220.00 m2

FOTOGRAFIA

Nicneu Studio

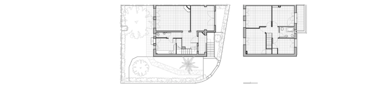
Rehabilitación y ampliación de una casita pareada en la parte alta de la ciudad, ubicada en el histórico barrio de La Mercè.

La urbanización, proyectada en 1944 y construida en 1950 por la Obra Sindical del Hogar, consistía en un barrio de casitas modestas, a modo de ciudad-jardín. La ti-

pología de edificación era en agrupaciones de 2 casas con una pared común. Las casitas disponían de planta baja y planta primera, con jardín.

El conjunto está catalogado como Patrimonio Arquitectónico y cuenta con un nivel de protección urbanístico que obliga a mantener volumetría y fachadas además

de colores y características de la edificación original, garantizando el mantenimiento de la homogeneidad tipológica del barrio.

 
Investigació i recerca de plànols històrics a l’arxiu: Planta i Alçat d’habitatge tipus C-C1 1944
 
Se rehabilitaron las fachadas sin afectarlas, y se realizó la demolición interior, apareciendo un espacio desaprovechado bajo cubierta, con la presencia de una preciosa cercha de madera. Así mismo, se excavó una planta sótano, bajo ha huella del edificio, ganando para la casa, estos dos niveles adicionales.
 
Fotos obra: buidat interior –
El proyecto resuelve las necesidades de un programa familiar en las dos plantas originales, con la adición de un salón y garaje en planta sótano, y de una buhardilla bajo cubierta, dándole protagonismo a la cercha de madera, como elemento arquitectónico decorativo.
Avda. Vallcarca 180 08023 Barcelona 666 436 945 demiquel@coac.net

CAT