AÑO

2011

PROGRAMA

Residencial · Rehabilitación

SUPERFÍCIE

63.00 m2

FOTOGRAFIA

Nicneu Studio

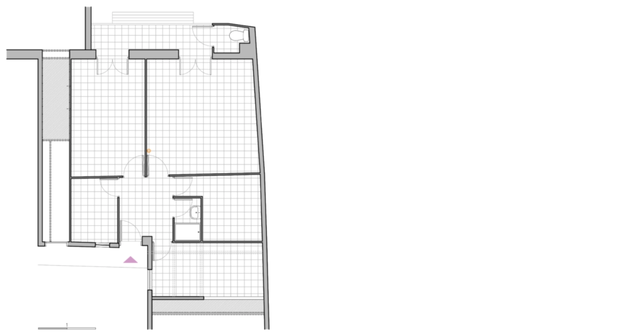
Este pequeño apartamento del barrio de Sant Pere, fue comprado por una fotógrafa para su rehabilitación. El edificio cuenta con un patio central, permitiendo el ac-

ceso a algunas viviendas a través de éste, en forma de corrala de vecinos.

El hallazgo al descubrir 1,5m de altura libre sobre el falso techo permitió sacar un altillo además de dejar en doble altura algunos espacios de la vivienda. Se descu-

brieron además unas vigas de madera antiguas que, después de su rehabilitación y limpieza, se dejaron vistas y una columna circular de fundición que, exenta y de

color naranja, destaca ahora como elemento ornamental de la vivienda.

Se trata de un apartamento diáfano con una habitación con baño y ropero, y espacio de cocina-comedor-salón abierto y comunicado. El altillo cuenta con un estudio

y zona de almacenamiento, accediendo por una escalera abierta. Tiene además una pequeña terraza con el lavadero.

Avda. Vallcarca 180 08023 Barcelona 666 436 945 demiquel@coac.net

CAT